GATETRENING 19
SKU-nummer: IP-KS-SW-45
Materialer
Galvanisert stål, Pulverlakkert stål, Rustfritt stål
Aldersgruppe
12+
Legeverdi
Balanse
Produktinformasjon
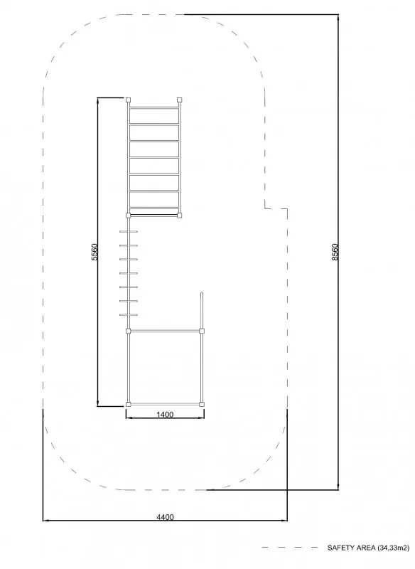
Gymnastikksett for ungdom og voksne bestående av:
4 høye horisontale stenger,
1 vertikal stige,
1 horisontal stige,
1 pull-up tube,
1 stang med håndtak.
Konstruksjonen er laget av galvanisert og pulverlakkert stål. Trening på settet styrker musklene i bryst, rygg, armer, skuldre og mage. Det forbedrer også balansen og den motoriske koordinasjonen.  
| Materialer | Galvanisert stål, Pulverlakkert stål, Rustfritt stål | 
|---|---|
| Aldersgruppe filter | 12+, 16+, 20+, Senior | 
| Legeverdi | Balanse | 
| Faldunderlag | Under 150 cm | 
| Aldersgruppe | 12+ | 
Dimensjonstoleransen er +/- 5 %.
Produktdetaljer:
Mål (L x B x H): 5,56 x 1,40 x 2,50 m
Sikkerhetsområde (L x B): 8,56 x 4,40 m
Fri fallhøyde 1,40 m
Stanghøyde: 2,40 m
Maksimal brukervekt: 150 kg
Materialer:
Galvanisert og pulverlakkert stål – enhetene er lakkert grønne (RAL 6013) og grå (RAL 9006). Andre RAL-farger er tilgjengelige på forespørsel.
Konstruksjonsstolper med firkantprofil 80×80 mm (tykkelse 3 mm),
Skruer dekket med polymerhetter. 
Lignende produkter
- 
	
Les mer om detFormasjon med åtte trampoliner. Tilpasset for bruk hele året. 
- 
	
Les mer om det
- 
	
Les mer om det
- 
	
Les mer om det
- 
	
Les mer om det
- 
	
Les mer om detTre runde trampoliner med en større rund trampoline i midten. Tilpasset for bruk hele året. 



 
								 
								






